Skip to main content
Hamdi Erdoğan Architecture home page
Search...
⌘K
LinkedIn
Portfolio
Google Business
İletişim
İletişim
Search...
Navigation
Turkbuku Modern
Ana Sayfa
Hamdi Erdoğan Mimarlık
Mies van der Rohe Ödülü 2009
Blog
Çevreyi Anlamak
Mimarlık ve Sanat
Yenilenme
Projeler
Konut Projeleri
Ticari Projeler
Yarismalar
Kurumsal
Hakkımızda
Mimarlar Odası ve Sivil Toplum Faaliyetleri
İletişim
Legal
Privacy Policy
Terms & Conditions
On this page
Turkbuku Modern
Proje Bilgileri
Galeri
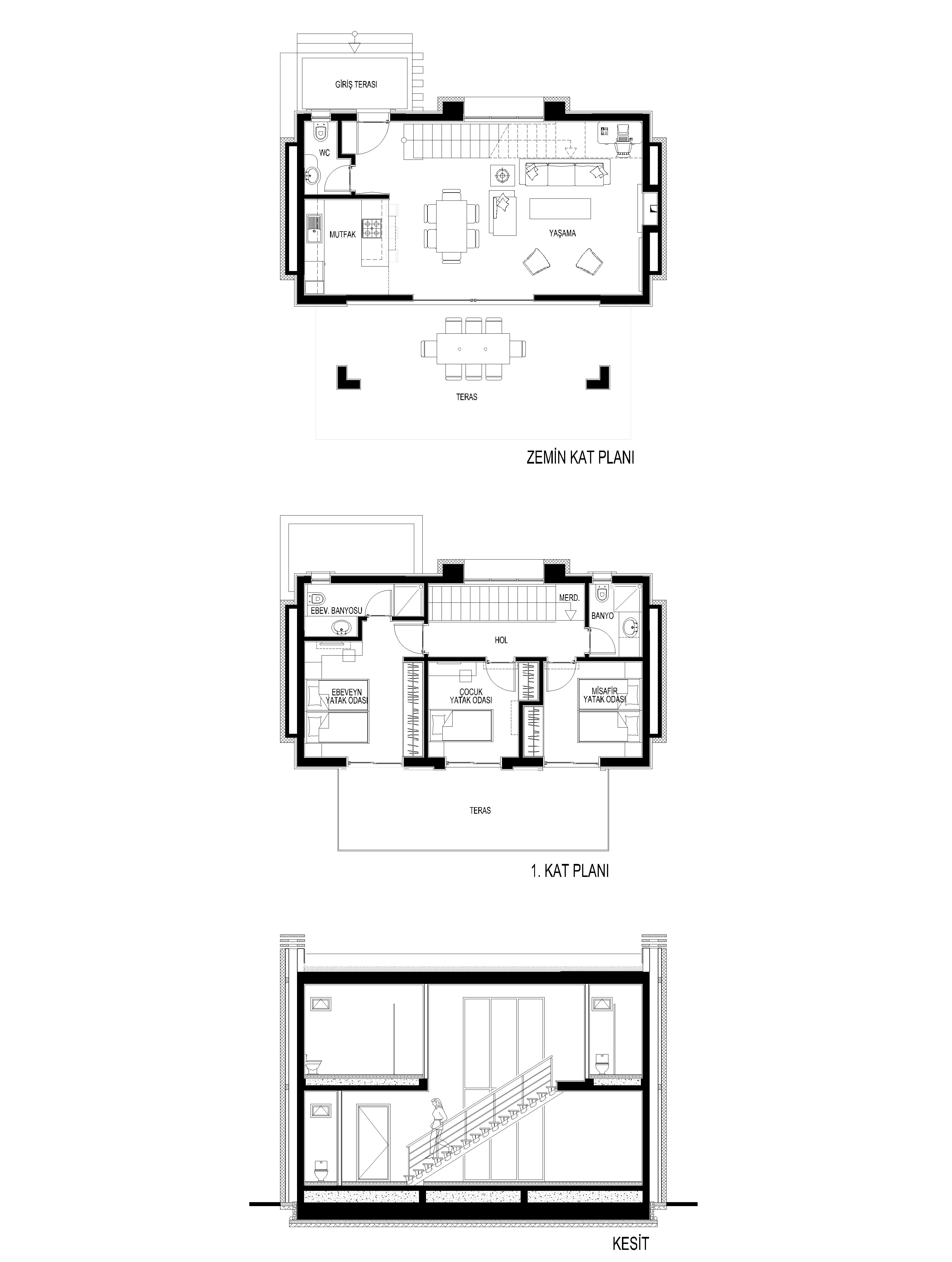
Turkbuku Modern
Turkbuku Modern projesi
Turkbuku Modern
Proje Bilgileri
Konum
Bodrum
Yıl
-
Tip
-
Durum
-
Galeri
⌘I